三校环绕,可容纳1285户!嘉定将新建一处经济适用房
@嘉定人,注意啦!南翔镇将要新建一处经济适用房,规划方案正在公示中,一起来看看吧~

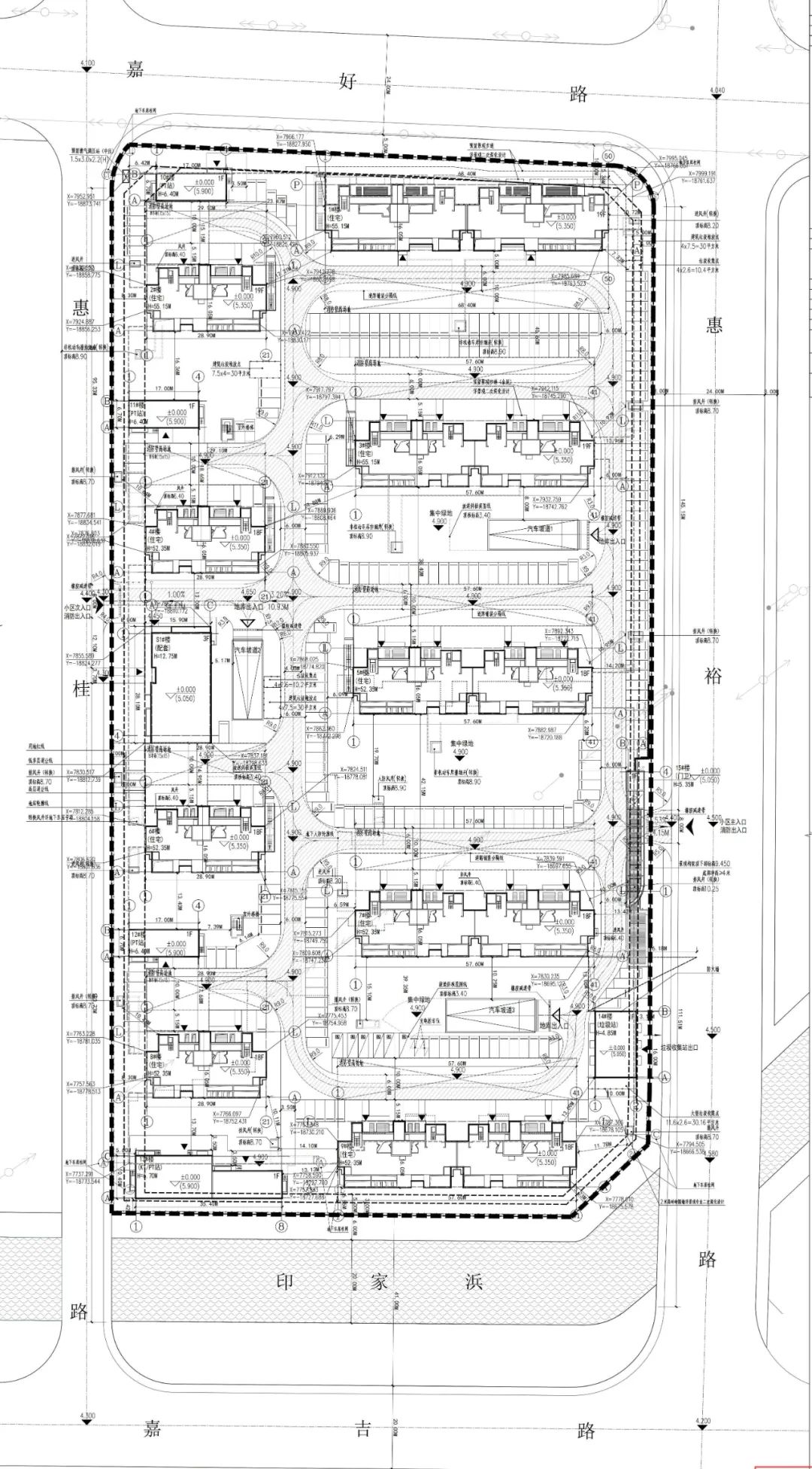
建设单位
上海蜀翔房地产有限公司
建设项目名称
嘉定云翔拓展基地10A-02A地块经济适用房项目
建设位置
嘉定区南翔镇
东至惠裕路,南至印家浜,
西至惠桂路,北至嘉好路。
项目靠近三所学校,
上海世外教育附属嘉定云翔小学(建设中),
上海嘉定世界外国语学校,
07A-01A地块幼儿园(项目名,建设中)。

建设规模
建筑面积:117898.48平方米
(其中地下建筑面积31412.02平方米)
计容建筑面积:82414平方米

本项目规划文化活动室、老年活动室、服务站等公共设施,建成后可容纳1285户,其中一房户数514户、两房户数697户、三房户数74户,机动车停车位1037辆,非机动车停车位1434辆。

作者: 通讯员嘉小规
编辑: 徐宇

