无障碍版
|
适老版
|
繁體版
|
English
一网通办
政府信息公开
政民互动
您的位置:
首页
>
嘉定区人民政府办公室
>
依申请转主动公开文件
>正文
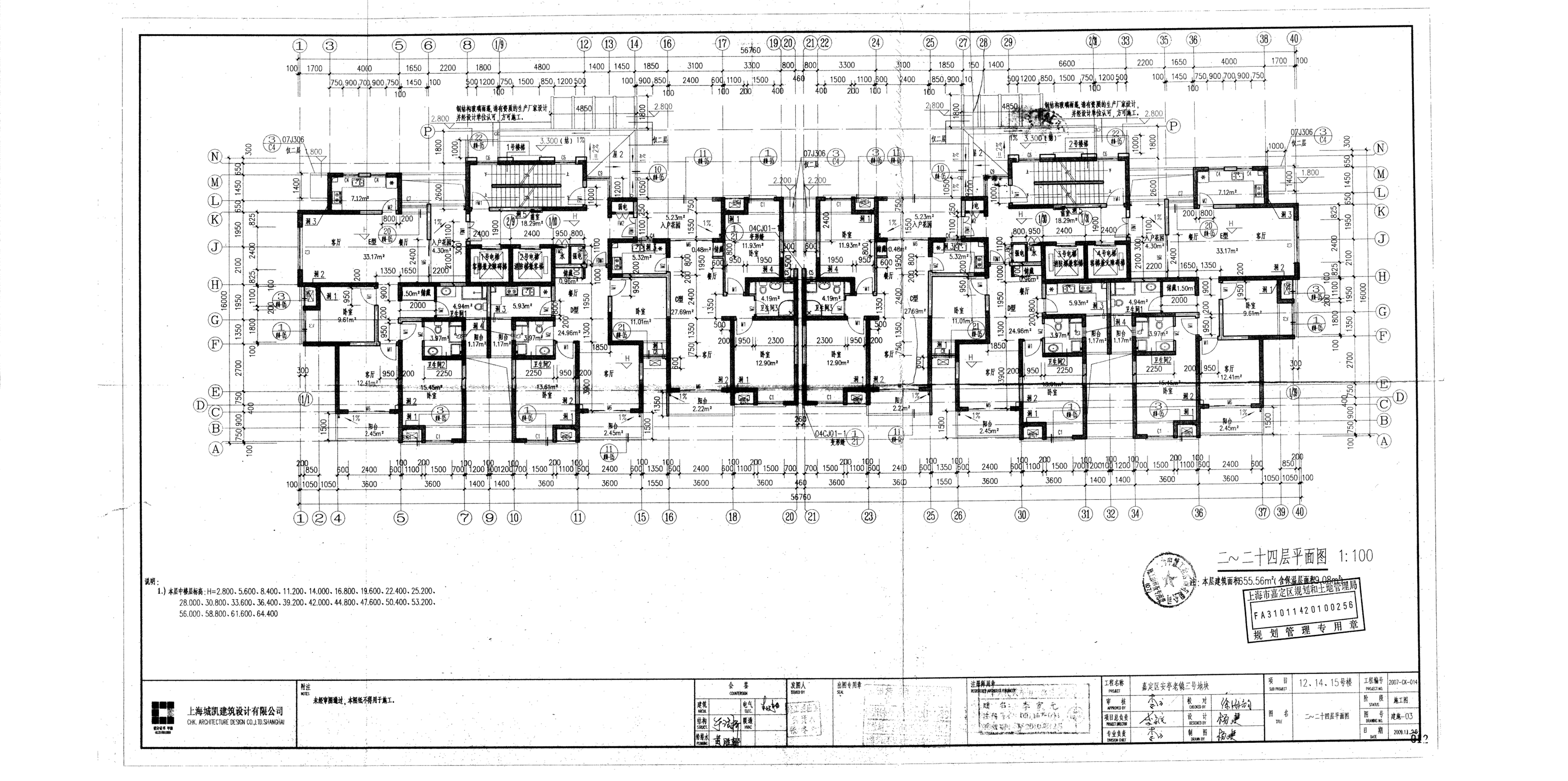
安亭中央公园 12、14、15号楼 二~二十四层平面图、立面图、剖面图
发布日期:2025-08-18
来源:上海嘉定
浏览次数:
次
扫一扫在手机打开当前页
分享到:
【打印】
【关闭】