无障碍版
|
适老版
|
繁體版
|
English
一网通办
政府信息公开
政民互动
您的位置:
首页
>
嘉定区人民政府办公室
>
依申请转主动公开文件
>正文
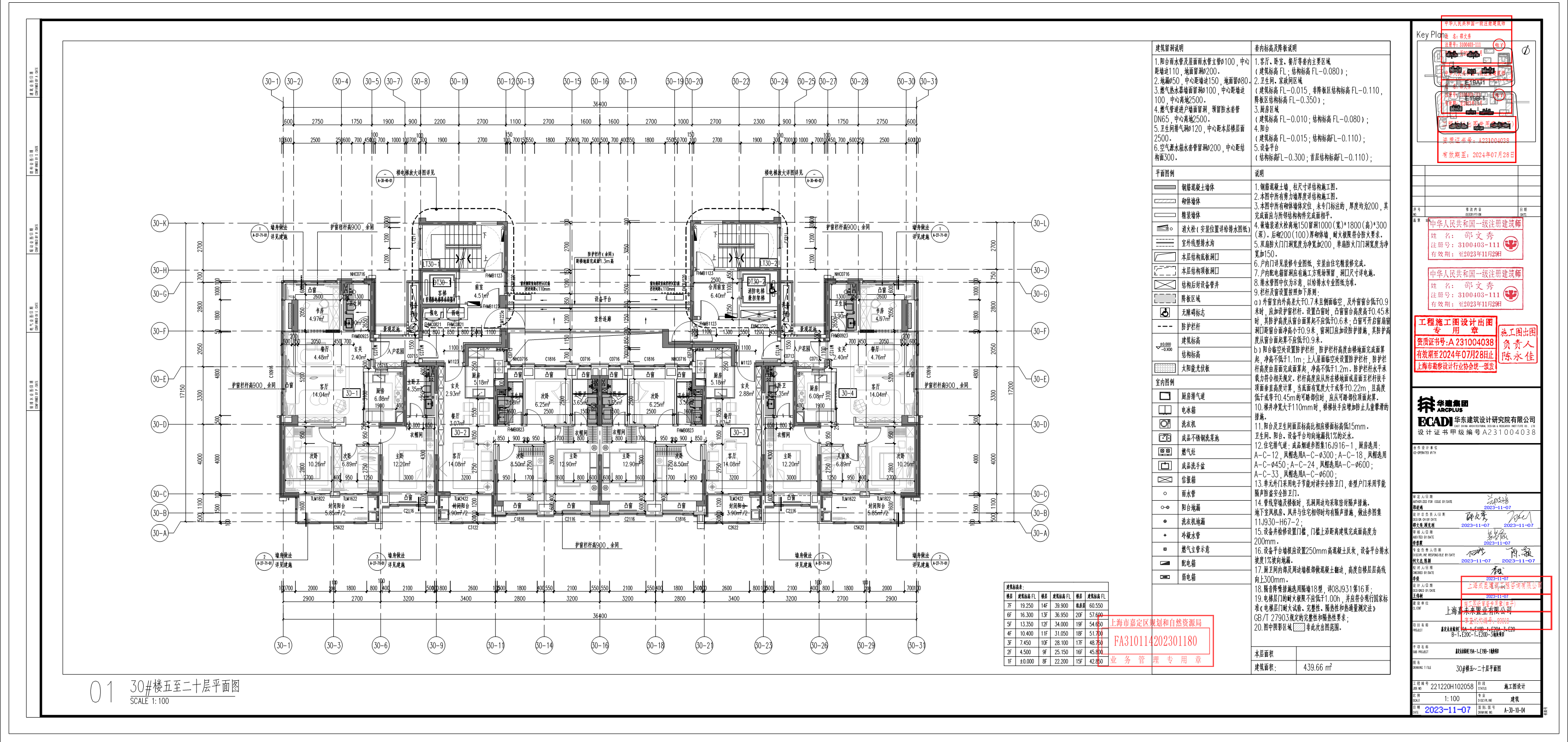
上海嘉未来置业有限公司 嘉定未来城市 30#楼 五~二十层平面图
发布日期:2025-09-11
来源:上海嘉定
浏览次数:
次
扫一扫在手机打开当前页
分享到:
【打印】
【关闭】