无障碍版
|
适老版
|
繁體版
|
English
一网通办
政府信息公开
政民互动
您的位置:
首页
>
嘉定区人民政府办公室
>
依申请转主动公开文件
>正文
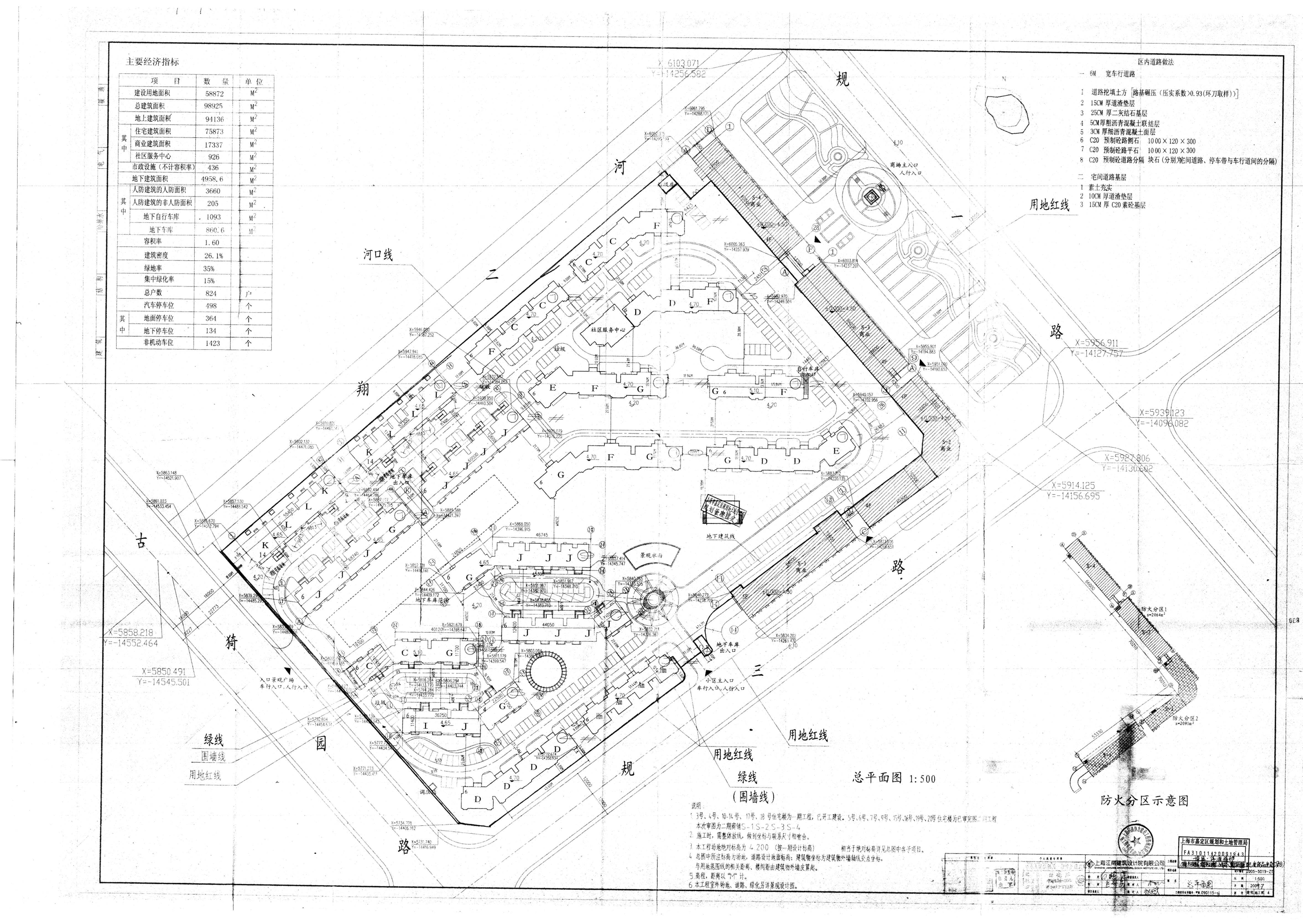
上海恒威房地产发展有限公司 博威祥源福邸 总平面图及小区商业用房分层平面图
发布日期:2025-11-14
来源:上海嘉定
浏览次数:
次
扫一扫在手机打开当前页
分享到:
【打印】
【关闭】