嘉定区塔城路又有两个
既有多层住宅将加装电梯
一起来看↓
上海市嘉定区塔城路331弄12号楼
既有多层住宅加装电梯项目
建设单位
上海市嘉定区东塔
第九届业主委员会
建设项目地址
上海市嘉定区塔城路331弄12号
平面图
用地性质
居住用地
效果图
建设工程性质
加装电梯工程
建筑面积
63.60平方米
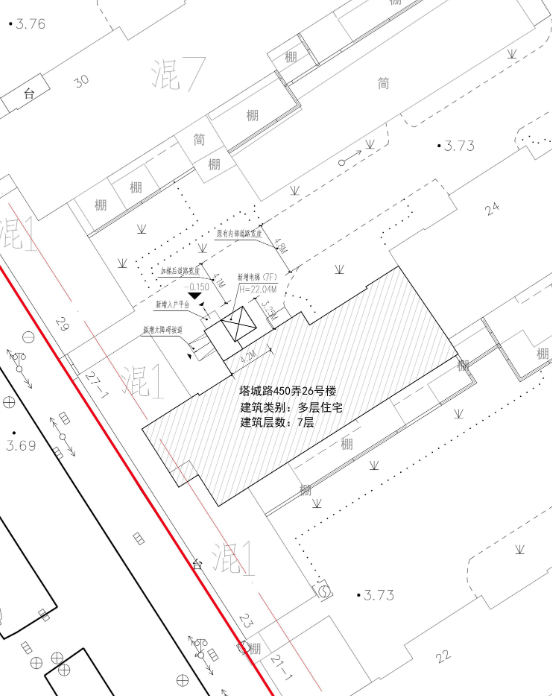
上海市嘉定区塔城路450弄26号楼
既有多层住宅加装电梯项目
建设单位
上海市嘉定区小囡桥
第六届业主委员会
建设项目地址
上海市嘉定区塔城路450弄26号
平面图
建设用地范围
塔城路450弄26号入口处
用地性质
居住用地
效果图
建设工程性质
加装电梯工程
建筑面积
76.85平方米

通讯员嘉小规
张子悦