丰庄路、丰庄北路
又有两个
既有多层住宅将加装电梯
一起来看↓
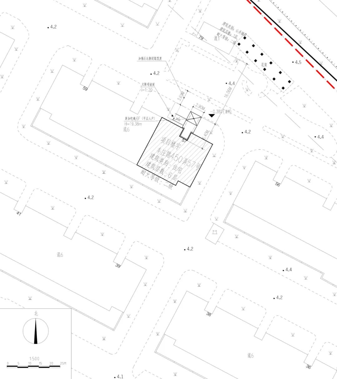
上海市嘉定区丰庄路450弄57号
既有多层住宅加装电梯项目
建设单位
上海市嘉定区丰庄一村第六届业主委员会
建设项目地址
上海市嘉定区丰庄路450弄57号
平面图
用地性质
居住用地
效果图
建设工程性质
加装电梯工程
建筑面积
98.16平方米
上海市嘉定区丰庄北路355弄
6号既有多层住宅加装电梯项目
建设单位
上海市嘉定区真新街道虬江社区居民委员会
建设项目地址
上海市嘉定区丰庄北路355弄6号
平面图
用地性质
居住用地
效果图
建设工程性质
加装电梯工程
建筑面积
45.00平方米

作者:通讯员嘉小规
编辑:徐宇